All projects commence with an on-site consultation priced at $250, plus travel if located outside a 10km radius of the Melbourne CBD. Once quote and design proposal are accepted, this cost will be deducted from the project’s overall fees.
As each property is unique, so too is the investment required to reach the best possible outcome. Please see the following as a guide only as your proposal will cover the specific requirements we feel would be the best fit for you and your property.
FULL SERVICE IncludeS
Following the Initial Brief the following phases of work apply;
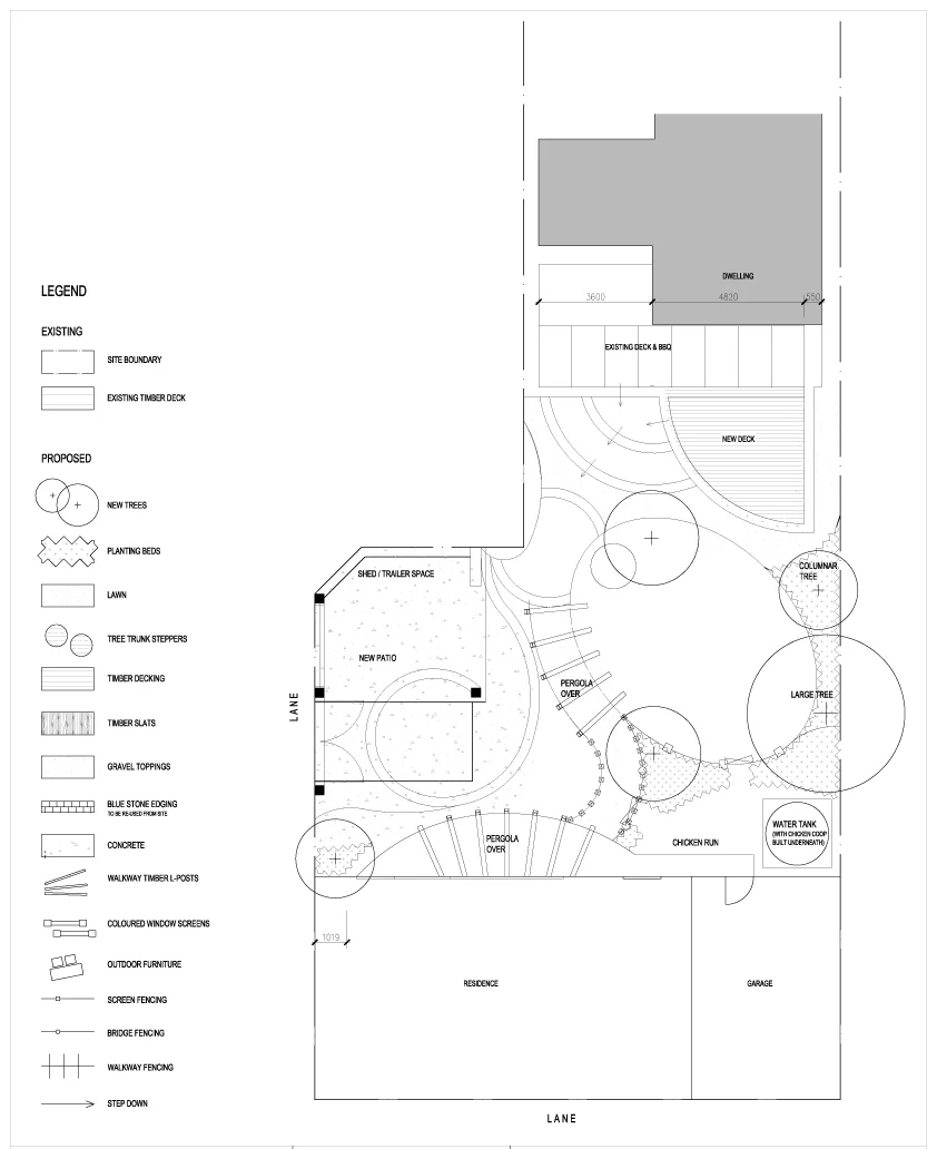
CONCEPT DESIGN PHASE
This phase provides concept sketches, digital mood board/s and samples when required for the purpose of illustrating the overall concept.
Site measure and assessment
Digital Mood/Colour/Theme board
DESIGN DEVELOPMENT PHASE
This phase progresses the initial approved concept wherein specific products and materials are explored, concepts are detailed and a preliminary budget is formed.
This may include;
Sketches of the space to meet your specific requirements ie;
Hard landscaping items
Bespoke joinery or other items
Assessment of soil type
Assessment of ground levels
DOCUMENTATION
This phase provides all documentation necessary for trades to complete their individual tasks and for procurement of items from suppliers;
Working drawings, and specifications for trades - ie;
Tiling layouts
Fence and gate elevations
Schedules of Furniture, Fittings and Equipment
Plant Schedules
SITE ADMINISTRATION
This phase covers all construction on site;
Coordination all off and onsite fabrication, installation and site works
Supervision of trades
Regular site inspections to ensure design integrity
NB: Does not include changes that require submissions to council, but we are more than happy to work alongside your architect.
The FEEL DESIGN
(+61) 0414 060 537
